Pre-heaters, Condenser

The vertical orientation is utilized when there is limited floor space, and the volume of the vessel is small. This orientation is also used in mixing tanks and has a high gas to liquid ratio. The horizontal vessel orientation is used in heat exchangers and flash drums. It is also used in settling tanks.

Evaporators

An evaporator is a vessel or stage which turns a liquid into vapor. In a commercial refrigeration system, changes in temperature force a refrigerant to become a vapor in the evaporator. The main heating and cooling functions of an evaporator are vaporization and condensation.

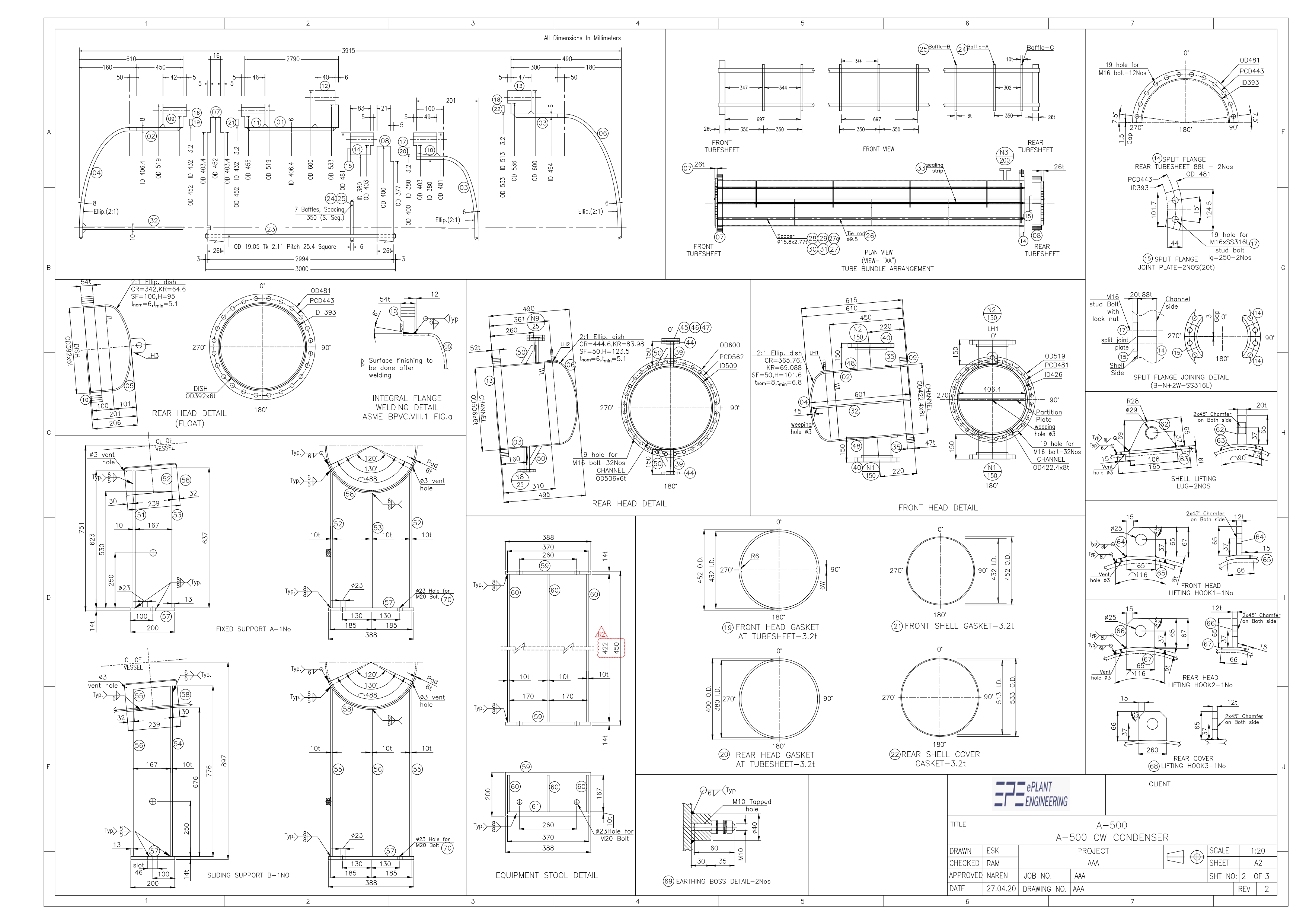
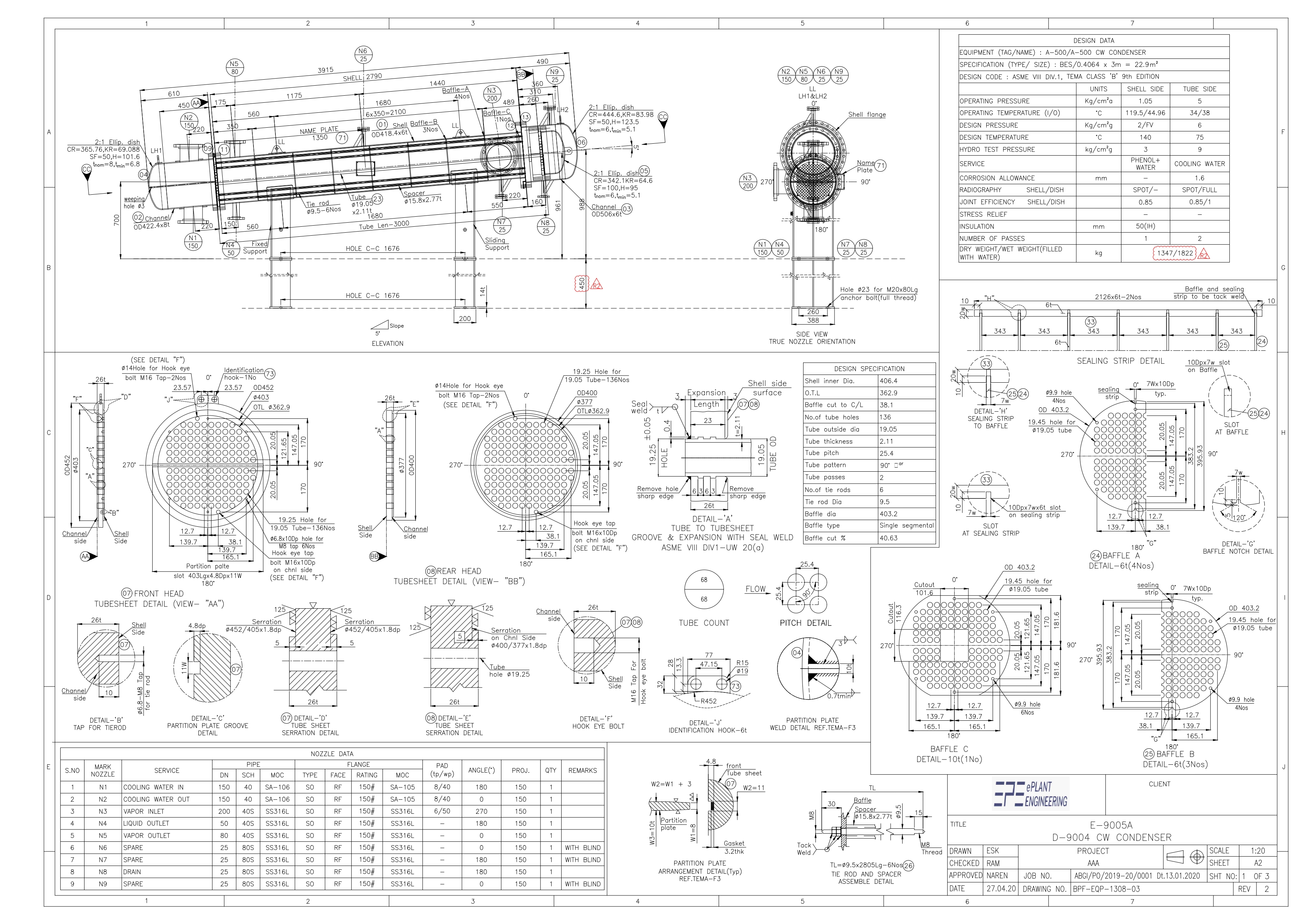
Various types of shell and tube heat exchangers

  • 1.Fixed tube sheet 2.‘U’ bundle (Pull through bundle)
  • 3.Floating Bundle
  • 4.Pipe-in-Pipe heat exchangers

Heat Exchanger

  • Pre-heaters, Condenser
  • Evaporators
  • Various types of shell and tube heat exchangers